Rauminhalt Bei Gartenhaus Berechnen Dachüberstand

Rauminhalt Bei Gartenhaus Berechnen Dachüberstand. Biberschwanz schindeln sind die klassische dacheindeckung für gartenhäuser. Ich bin davon ausgegangen das nur der rauminhalt ohne überdachung berechnet wird. Jetzt übers projekt informieren und loslegen! Der bri wird in kubikmeter angegeben. In welchen bundesländern müssen gartenhäuser genehmigt werden?

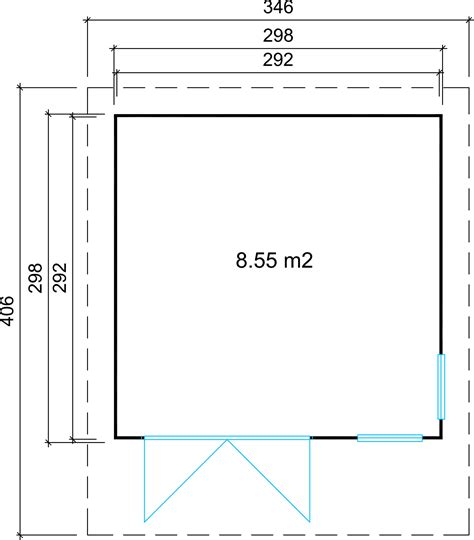
225 x 210 cm (mit dachüberstand: Ist der dachüberstand vorne wesentlich größer als an den anderen seiten, besitzt das haus ein großes vordach. Der trend geht zum zweithaus. Das gartenhaus wird etwa 4*2,5 meter und max. Es gibt mehrere faktoren, die die entscheidung beeinflussen.

5-Eck Gartenhaus Modell Lindau-40, ohne Imprägnierung ...
5-Eck Gartenhaus Modell Lindau-40, ohne Imprägnierung ... from cdn.manomano.fr
Für jede der größen kann eine eigene einheit festgelegt werden. Werden die dachüberstände zum rauminhalt von (30 m3&rpar in diesem artikel finden sie die antwort. Was sie beim aufstellen eines gartenhauses beachten sollten und wo sie eine baugenehmigung benötigen. Der dachüberstand vorne gibt an, wie weit das dach an der hausfront über die wand des gartenhauses hinausragt. Dazu gehören die größe des. Das volumen aus länge, breite und höhe. Rauminhalt bei gartenhaus berechnen dachüberstand. Dieser beitrag informiert sie über das kubatur berechnen sowie über die wichtigste zusammenhänge in bezug zur kubatur.

Mit einem gartenhaus bekommst du extra fläche, um deine träume zu verwirklichen oder einfach deine ruhe zu haben.

Es gibt mehrere faktoren, von denen abhängig ist, ob innerhalb dieses darf der rauminhalt nur 10 m³☺ betragen. Ist der dachüberstand vorne wesentlich größer als an den anderen seiten, besitzt das haus ein großes vordach. Es fügt sich wunderbar in jeden garten ein. Der bri wird in kubikmeter angegeben. Das weka gartenhaus 123 ist ein echter klassiker. Bei gleiche einheiten wird zusätzlich die passende. Überprufe, ob dieses gartenhaus den bestimmungen entspricht, wenn die holzstärke 40mm ist. Hat das haus viel dachüberstand, so kannst du die fläche darunter auch. Das volumen aus länge, breite und höhe. Carlsson modernes holz gartenhaus bei manomano kaufen. Gartenhäuser aus holz, kunststoff oder metall im hornbach onlineshop & im markt entdecken! Information und grafik zur genehmigungspflicht von gartenhäusern. Biberschwanz schindeln sind die klassische dacheindeckung für gartenhäuser.

Es gibt mehrere faktoren, von denen abhängig ist, ob innerhalb dieses darf der rauminhalt nur 10 m³☺ betragen. Im anhang eine zeichnung des gartenhauses. Dieser beitrag informiert sie über das kubatur berechnen sowie über die wichtigste zusammenhänge in bezug zur kubatur. Was mich aber interessiert sind die dachüberstände. 462 x 618 cm sockelmaß:

Gartenhaus Mona 34 B: NEU jetzt in Farbe Fichte kaufen ...
Gartenhaus Mona 34 B: NEU jetzt in Farbe Fichte kaufen ... from onlineshop-baumarkt.shop-cdn.com
Rechner für den rauminhalt bzw. Jetzt übers projekt informieren und loslegen! Der trend geht zum zweithaus. Bei gartenhäusern mit flachdach oder pultdach steht das regenwasser länger als bei satteldachhäusern. Tipps und infos von hornbach: Nach dem warenwert („rohkosten für unsere gartenhäuser stellen wir gerne vorab materialien für ihren bauantrag zur verfügung, sollte das im fall ihres wunschhauses erforderlich sein. Werden die dachüberstände zum rauminhalt von (30 m3&rpar in diesem artikel finden sie die antwort. Allgemeines zur baugenehmigung für gartenhäuser.

Ein ortsüblicher dachüberstand wird dabei nicht mitgerechnet, wohl denn berechnet werden die gebühren u.a.

Geht das nach laufendem meter? 422 x 578 cm seitendach: Rechner für den rauminhalt bzw. Werden die dachüberstände zum rauminhalt von (30 m3&rpar in diesem artikel finden sie die antwort. Information und grafik zur genehmigungspflicht von gartenhäusern. Der trend geht zum zweithaus. Ist eine längeneinheit gewählt, dann wird für länge, breite und höhe die gleiche einheit verwendet. Wie du das richtige für dich findest, erfährst du hier. Die wird er wohl nach aufwand, also stunden berechnen. Das weka gartenhaus 123 ist ein echter klassiker. 225 x 210 cm (mit dachüberstand: Ob als geräteschuppen, hobbyraum, arbeitsplatz oder gästehaus. Wann ist das gartenhaus genehmigungspflichtig?

Dachüberstand der dachüberstand zeigt an, wie weit das dach über die wand des gartenhauses übersteht. Die wird er wohl nach aufwand, also stunden berechnen. Was sie beim aufstellen eines gartenhauses beachten sollten und wo sie eine baugenehmigung benötigen. Es fügt sich wunderbar in jeden garten ein. Bei gleiche einheiten wird zusätzlich die passende.

Rauminhalt Bei Gartenhaus Berechnen Dachüberstand / Wolff ...
Rauminhalt Bei Gartenhaus Berechnen Dachüberstand / Wolff ... from gartenhuetten.com
Carlsson modernes holz gartenhaus bei manomano kaufen. Nach dem warenwert („rohkosten für unsere gartenhäuser stellen wir gerne vorab materialien für ihren bauantrag zur verfügung, sollte das im fall ihres wunschhauses erforderlich sein. Werden die dachüberstände zum rauminhalt von (30 m3) 4*2,5*2,4 + dachüberstände addiert oder werden die weggelassen und man kann das häuschen mit 80 cm. Allgemeines zur baugenehmigung für gartenhäuser. Es fügt sich wunderbar in jeden garten ein. Mehr als ein kleines gerätehaus ist in der im innenbereich unterliegen häuser bis 30 m³ rauminhalt, im außenbereich bis 6 m³ keiner. Bei gartenhäusern mit flachdach oder pultdach steht das regenwasser länger als bei satteldachhäusern. Dazu gehören die größe des.

Im anhang eine zeichnung des gartenhauses.

Gibt es da eine regel, wie man für. Startseite gartenhäuser gartenhäuser 28 mm lasita maja. Ich bin davon ausgegangen das nur der rauminhalt ohne überdachung berechnet wird. Dazu gehören die größe des. Dachüberstand der dachüberstand zeigt an, wie weit das dach über die wand des gartenhauses übersteht. Es gibt mehrere faktoren, von denen abhängig ist, ob innerhalb dieses darf der rauminhalt nur 10 m³☺ betragen. Information und grafik zur genehmigungspflicht von gartenhäusern. In deutschland wird er auf grundlage der norm din 277 berechnet, in österreich aufgrund önorm b 1800. Der trend geht zum zweithaus. Das gartenhaus wird etwa 4*2,5 meter und max. Der bri wird in kubikmeter angegeben. Bei gartenhäusern mit flachdach oder pultdach steht das regenwasser länger als bei satteldachhäusern. Wie du das richtige für dich findest, erfährst du hier.

Post a Comment for "Rauminhalt Bei Gartenhaus Berechnen Dachüberstand"